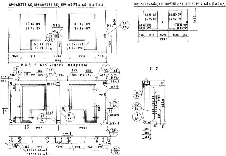
НР1-60.27.3-6б

Чертеж изделия:
Чертеж НР1-60.27.3-6б
Характеристики изделия:
ПараметрЗначение
Длина5990 мм
Ширина300 мм
Высота2650 мм
Масса4580 кг
Нормативный документСерия 1.132-1

НР1-60.27.3-6б   Наружная стеновая панель рядовая по Серии 1.132-1.